武汉市自然资源和规划局
WUHAN NATURAL RESOURCES AND PLANNING BUREAU
东湖新技术开发区分局

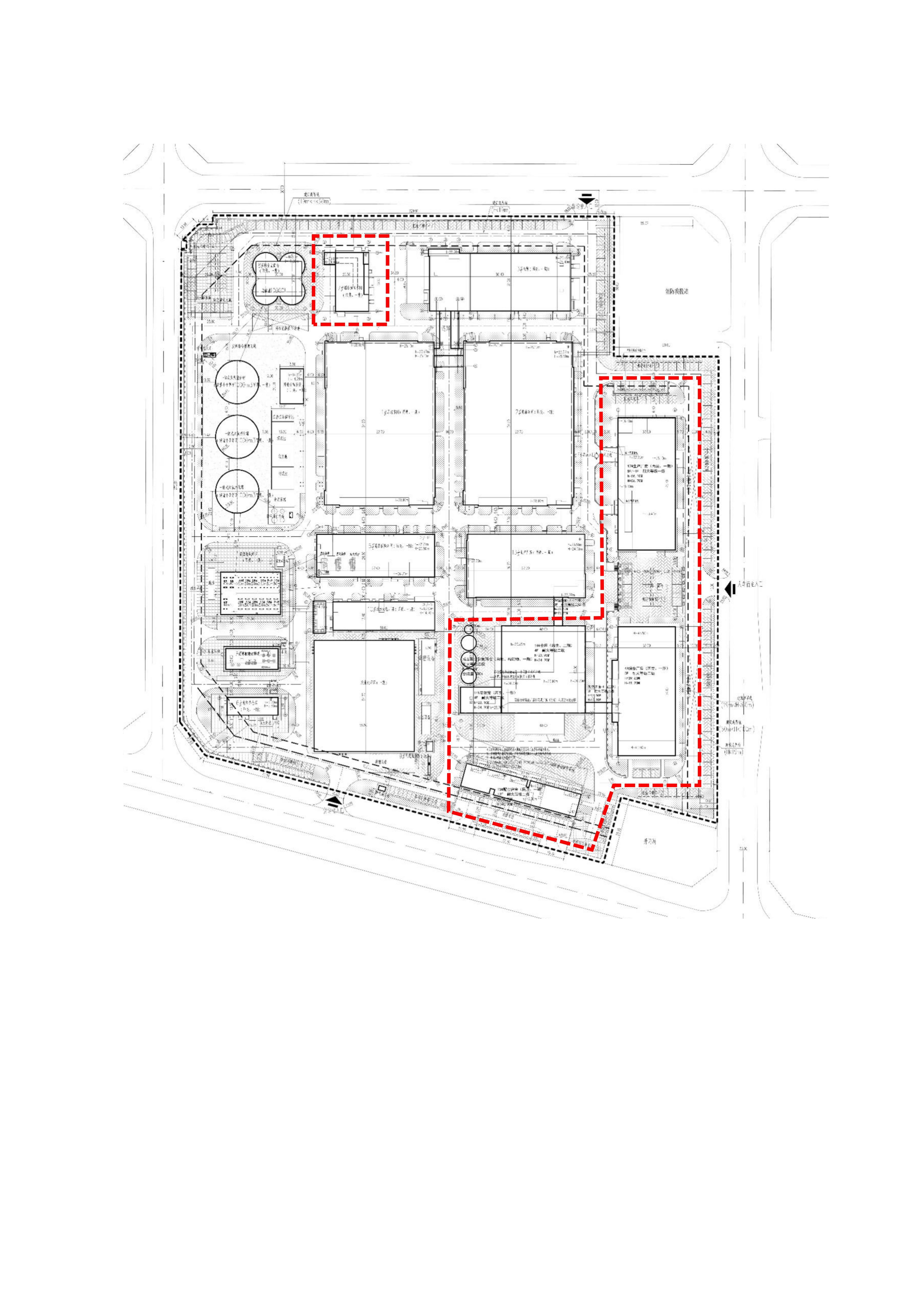
武汉禾元生物科技有限公司植物源重组人血清白蛋白产业化基地建设项目规划设计方案调整批前公示

2025-10-11 15:17 武汉国家生物产业基地建设服务中心


相关附件:

主管:武汉市自然资源和规划局东湖新技术开发区分局 技术支持:武汉市自然资源和规划信息中心

咨询电话:027-67880307 店小二专线:027-67880304

政府网站标识码:4201000005 鄂ICP备20003120号-1 鄂公网安备 42010202000267号   鄂公网安备 42010202000267号